书目
消息
首页
搜索
购物车
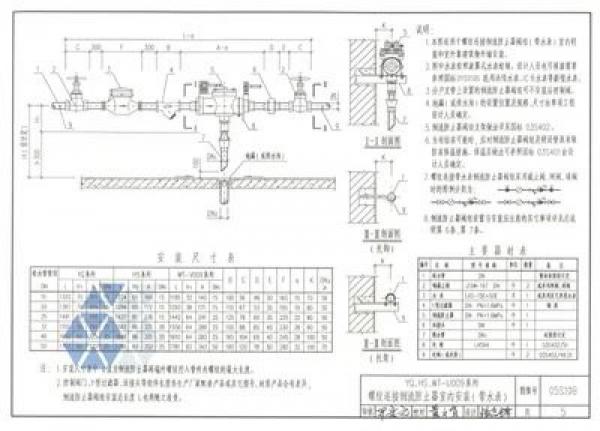
国家建筑标准建设图集05S108:倒流防止器安装
作者
中国建筑标准设计研究院
编
出版社
中国计划出版社
出版时间
2007年6月 第1版
ISBN
9787801778246
定价
11.00
内容简介
《国家建筑标准建设图集05S108:倒流防止器安装》是按照建设部“关于印发《二〇〇四年国家建筑标准设计编制工作计划》的通知”(建质[2004]46号文)进行编制的。适用于民用建筑及一般工业建筑生活给水系统倒流防止器安装。
目录
— END —